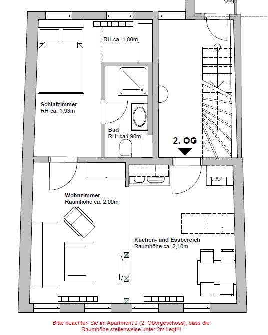
Apartment im 2.Obergeschoss

Für bis zu 4 Personen


Über die Unterkunft

Dieses Apartment mit offenem Schnitt bietet Ihnen ein Wohnzimmer mit einem Sitzbereich und einem Smart- TV sowie eine offene Küche mit einem Kochfeld, einer Mikrowelle, einem Geschirrspüler und einem Kühlschrank. Das eigene Bad ist mit einer Dusche ausgestattet. Das Schlafzimmer ist zum ruhigen Innenhof hin gelegen. Im Apartment steht Ihnen kostenfreies Wlan zur Verfügung. Das eigene Bad ist mit einer Dusche ausgestattet.

Bitte beachten Sie, dass das Apartment über eine niedrige Decke verfügt (unter 2 m in einigen Bereichen).

Adresse: Augustinerstr. 5, 99084 Erfurt, Thüringen, Deutschland

Größe: 40.0 m², 1 Schlafzimmer, 1 Bad

Betten: 1 Doppelbett, 1 Schlafsofa

Preise: 79 EUR - 99 EUR / Nacht

Weitere Preisinformationen:

Der Basispreis beinhaltet das Übernachten für 2 Personen und 7% MwSt.

Achtung: Kinder unter 1 Jahr zahlen nichts. Ab einem Jahr zahlen sie den Preis der zusätzlichen Person!

Die Stadt Erfurt erhebt eine Beherbergungssteuer von 5% des Übernachtungspreises!

Dies muss bei jeder Buchung (auch geschäftlich) angegeben werden!


Ausstattung

  • Handtücher und Bettwäsche
  • TV
  • Heizung
  • Internet
  • Föhn
  • Nichtraucherunterkunft
  • Toilettenpapier und Seife
  • Kabelfernsehen
  • Küche
  • WLAN
  • Kleiderbügel
  • Kinderhochstuhl

Weitere wichtige Infos

Parken in der Straße gegen Parkgebühren!

Es gibt in direkter Nähe öffentliche Parkmöglichkeiten mit Parkscheinautomat und ca. 5 min fußläufig ein Parkhaus (Parkhaus am Thüringenhaus, Wallstraße 18)...oder Sie nutzen ein kostengünstigeres Parkhaus etwas außerhalb in der Magdeburger Allee bei den Stadtwerken. Zum Ein- und Ausladen können Sie auch kurz an der Seite in unserer Straße halten, falls gerade nichts frei sein sollte. Es gibt auch Plätze ca. 10 -15 min zu Fuß, die außerhalb der Innenstadt -Parkzone liegen. Gern erklären wir Ihnen alles auch nochmal wenn sie da sind 😉

Verkehrsmittel

Öffentliche Verkehrsmittel sind in direkter Nähe zu erreichen.

Karte

Belegungskalender

Anreise
Abreise
Personen